fbpx

I nostri immobili 

  • € 390.000,00
  • Camere
  • Bagni
  • Locali
  • Via Trincea delle Frasche/Via Angelo Siffredi In vendita Villa

    Via Trincea delle Frasche/Via Angelo Siffredi, Fiumicino, 00054, Roma, lazio

     Descrizione

    VIA TRINCEA DELLE FRASCHE ANGOLO vIA ANGELO SIFFREDI VILLE 2 LIVELLI CON GIARDINO

    VIA TRINCEA DELLE FRASCHE ANGOLO VIA ANGELO SIFFREDI

    VILLE QUADRIFAMILIARI CON GIARDINO

    CONSEGNA PREVISTA GIUGNO 2027

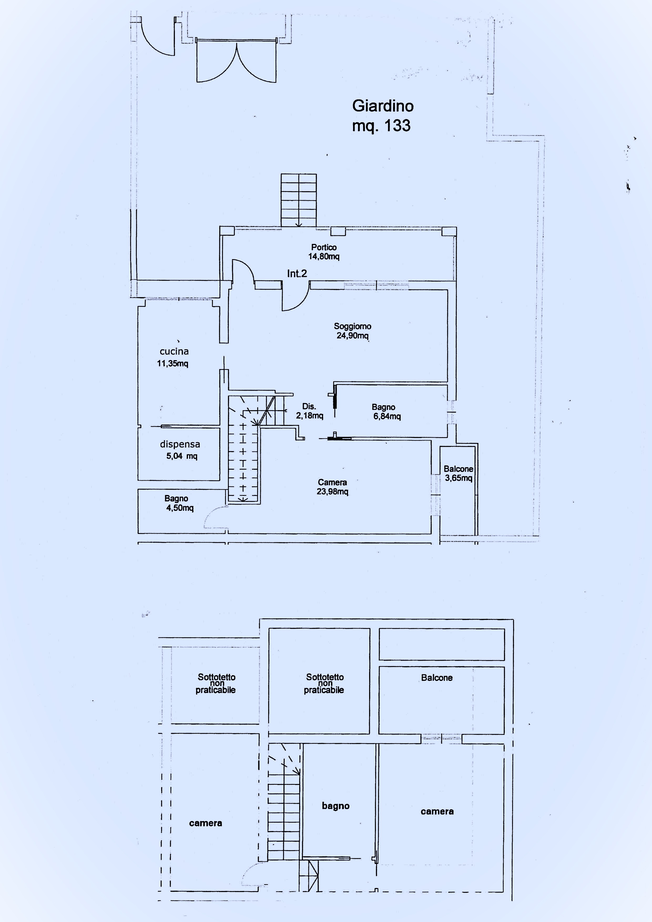
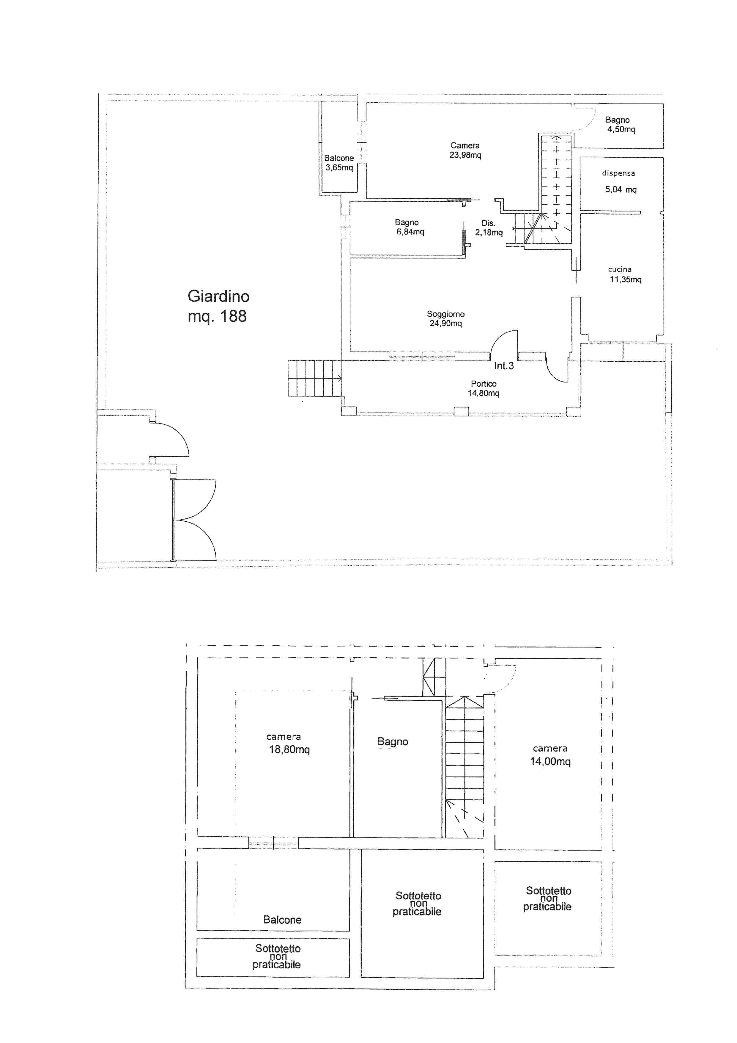
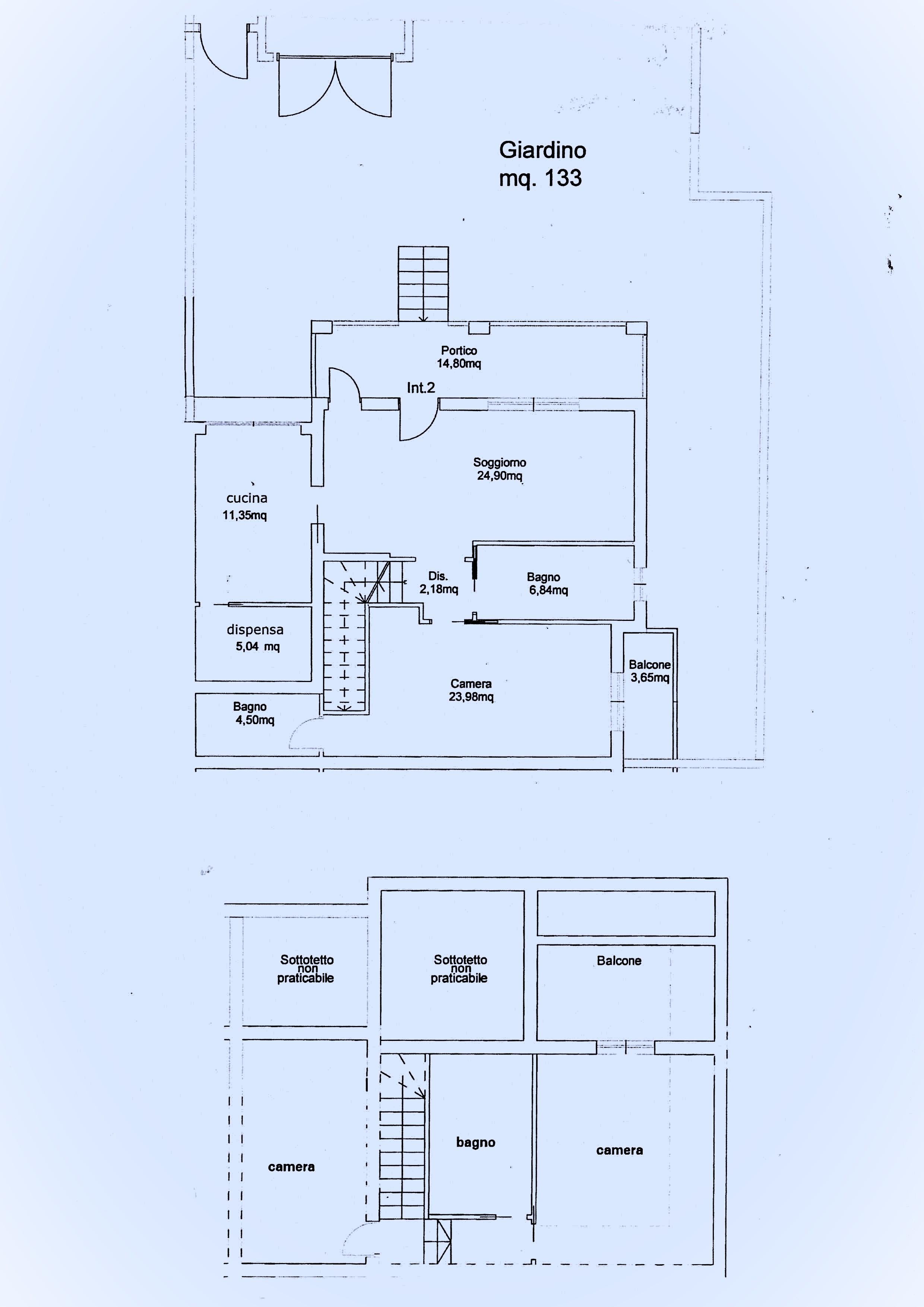
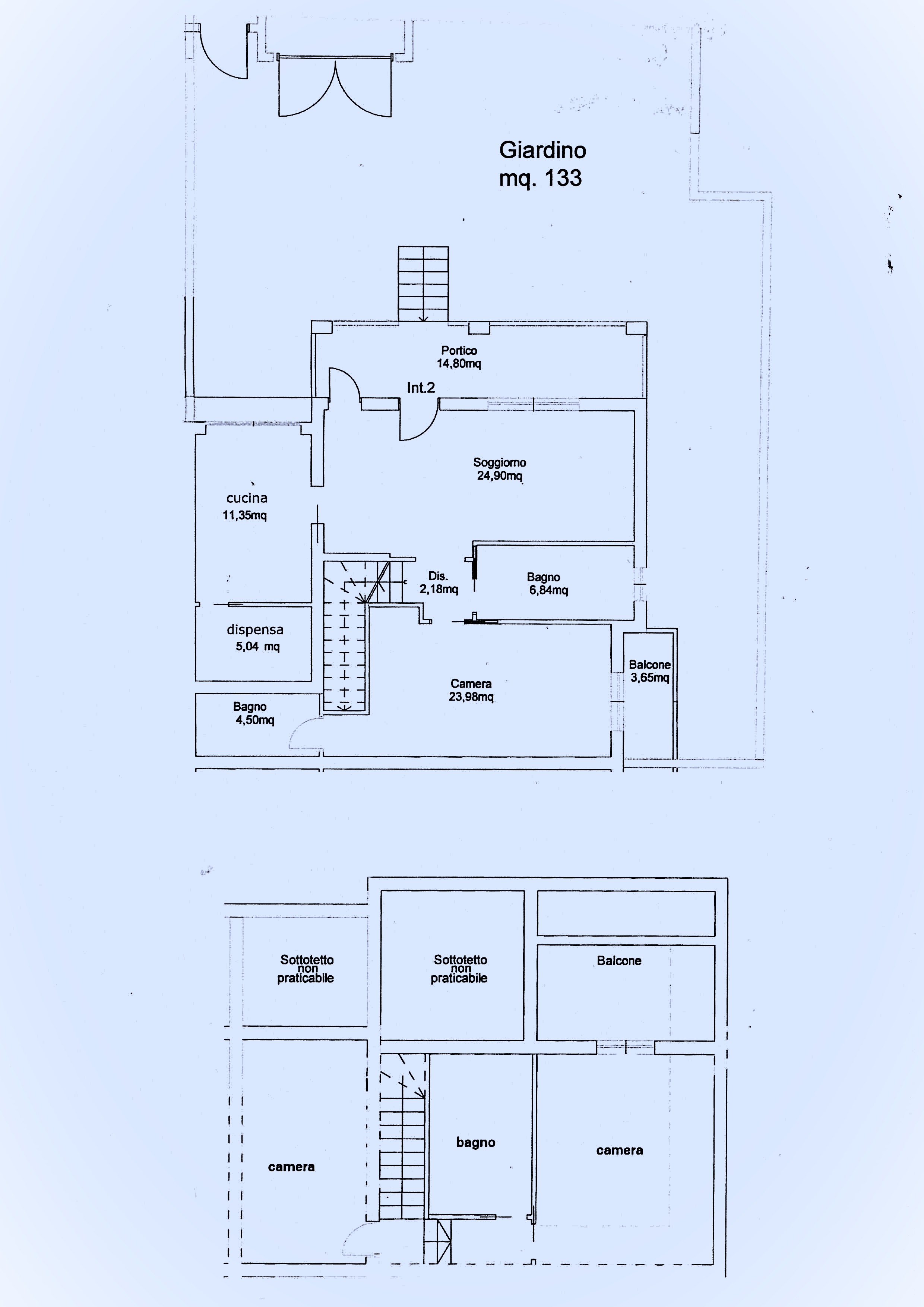
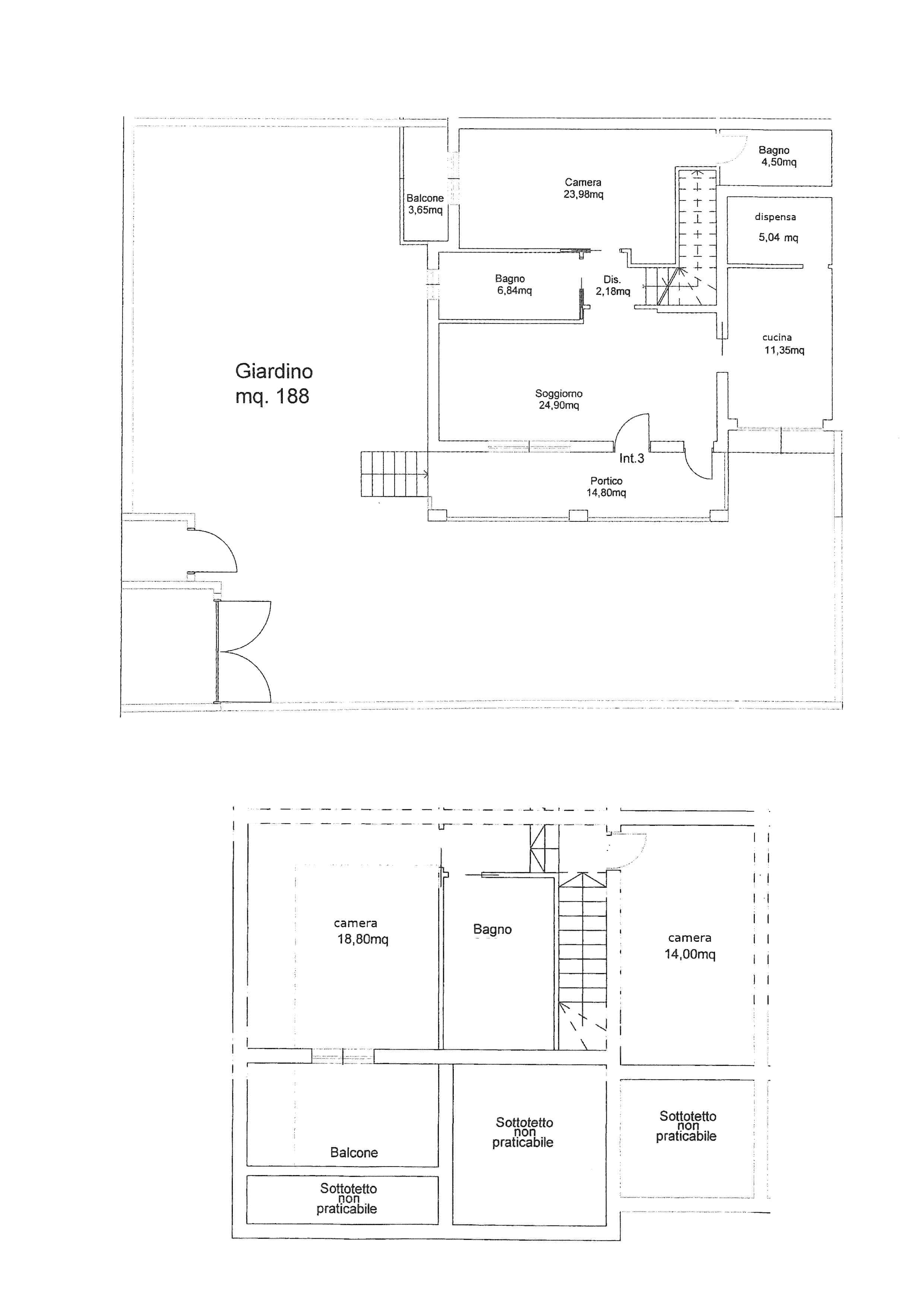
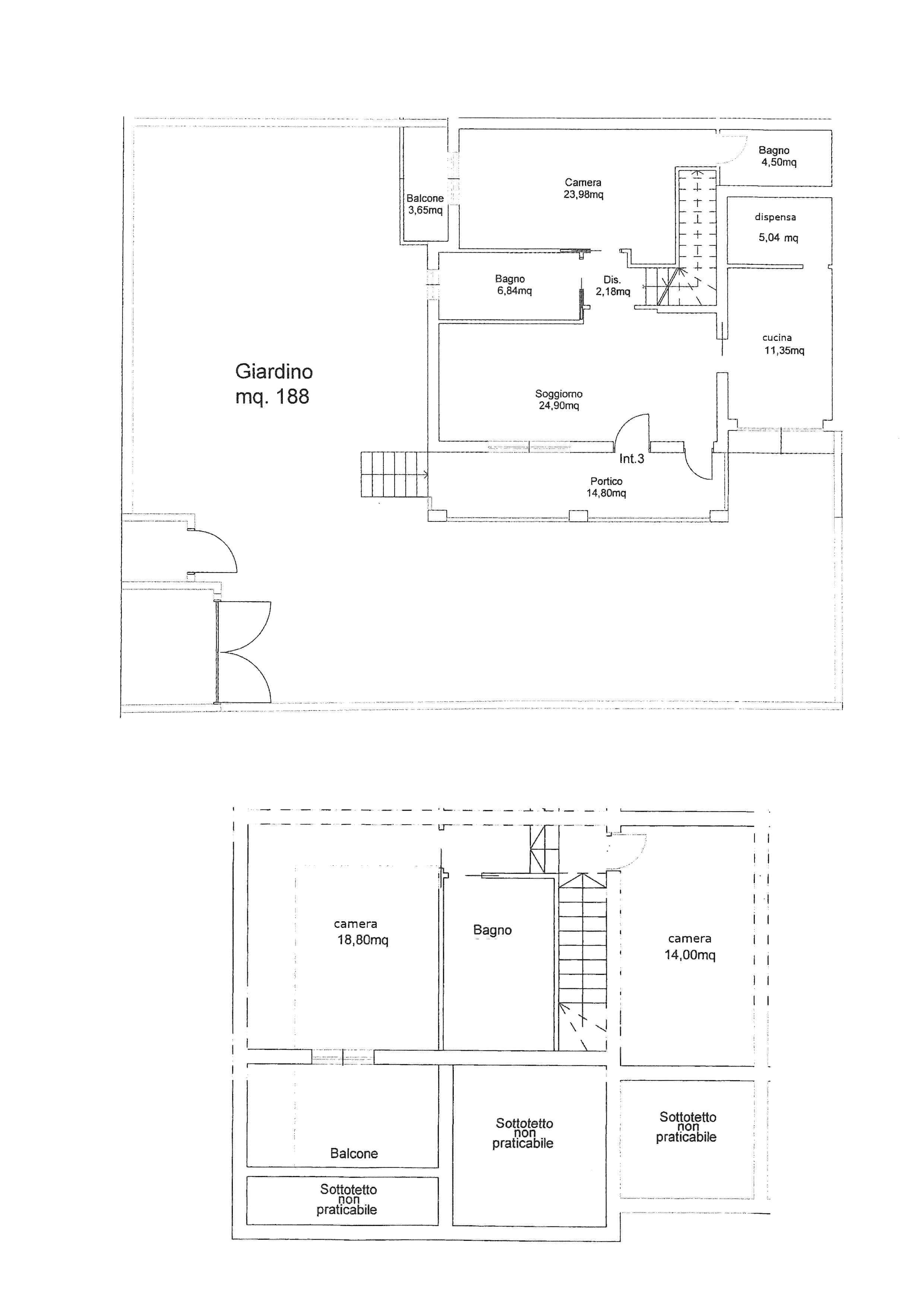
    Le unità immobiliari sarnno sviluppate su due livelli fuori terra quindi piano rialzato e primo piano, con una superficie commerciale di circa 120 mq interni oltre spazio esterno privato tra balconi, portici coperti e giardini.

    All'interno saranno cosi suddivise: 

    Al piano rialzato ampio salone con possibilità di realizzare una cucina separata vivibile, oppure creare un grande open space tra salone e zona cucina.  Nella zona notte ci sarà un bagno finestrato, una camera da letto matrimoniale con cabina armadio (possibilità di creare anche un bagno in camera al posto della cabina armadio). 

    Al piano superiore da cui si accede tramite una comoda scala realizzata in pietra lavica dell'Etna, si accede ad altre due camere da letto di cui una con terrazzino, ed un altro bagno.

    All'esterno troviamo ampi spazi tra portici coperti e giardini semi pavimentati, con ingressi carrabili e pedonali.

    Gli impianti,   con riscaldamento a terra, e split di aria condizionata, impianto fotovoltaico, grate ,porte interne di falegnameria,  eleganti portoni blindati con vetro, finestre in pvc doppio vetro per un comfort ottimale tutto l'anno.

    La posizione è ideale per chi cerca la tranquillità ma allo stesso tempo una zona ben servita e ben collegata.  Nelle vicinanze si trovano piccole attività commerciali, supermercati, scuole e parchi pubblici.

    Non perdere l'occasione di vivere in una casa che combina modernità ed efficienza energetica con la classe energetica A.

    Prenota un appuntamento in sede per scoprire tutti i dettagli ed i progetti di questa straordinaria costruzione!

     Etichette

     Condividi

    Facebook   Tweet

     Caratteristiche

    Informazioni di base

    Locali
    5
    Camere
    3
    Bagni
    2
    Superficie lorda immobile
    120.00 Mq.

    Informazioni parcheggio

    Parcheggio
    1

    Informazioni Immobile

    Tipo di infissi
    pvc schuco
    Numero di piani
    2
    Costruito nel
    2023

     Servizi

    Servizi Esterni

    Posto auto
    Cancello carrabile

    Servizi Interni

    Condizionatore
    Predisposizione impianto antifurto
    Videocitofono

     Quartiere

    Supermercato
    1 Minuti
    Mare
    10 Minuti
    Caffetteria Bar
    2 Minuti
    Aeroporto
    5 Minuti
    Stazione Bus
    5 Minuti
    Polizia
    5 Minuti
    Centro
    1 Minuti

     Luogo

     Immobili simili

    Immobili simili
    VIA FOSCOLO MONTINI - villa con giardino
    In vendita € 325.000,00
    via foscolo Montini, Fiumicino, 00054, Roma, lazio
    VIA S. SPALLETTI - VILLE CON GIARDINO
    In vendita € 365.000,00
    VIA SPALLETTI, Fiumicino, 00054, Roma, lazio
    VIA N. MARSILI - VILLE CON GIARDINO
    In vendita € 390.000,00
    Via Spalletti, Fiumicino, 00054, Roma, lazio
    VIA FOSCOLO MONTINI - ville con giardino
    In vendita € 335.000,00
    via foscolo Montini, Fiumicino, 00054, Roma, lazio
    VIA IANNOTTA - VILLE CON GIARDINO
    In vendita € 325.000,00
    via foscolo Montini, Fiumicino, 00054, Roma, lazio
    Immobili dello stesso tipo
    VIA FOSCOLO MONTINI - villa con giardino
    In vendita € 325.000,00
    via foscolo Montini, Fiumicino, 00054, Roma, lazio
    Via dei Mitili - attico arredato pronta consegna
    In vendita € 174.000,00
    via dei Mitili 21F, Fiumicino, 00054, Roma
    Via del Riccio di Mare 26
    In vendita € 205.000,00
    Via del riccio di mare, Fiumicino, 00054, Roma
    FIUMICINO- LE VIGNOLE - VIA SESTANTE
    In vendita € 285.000,00
    Via Piasco, Fiumicino, 00054, Roma
    Via Federico Raffaele - trilocale al secondo piano
    In vendita € 210.000,00
    Via Federico raffaele 26, Fiumicino, 00054, Roma, lazio